Gjutformsgatan 7, Limhamn, Malmö

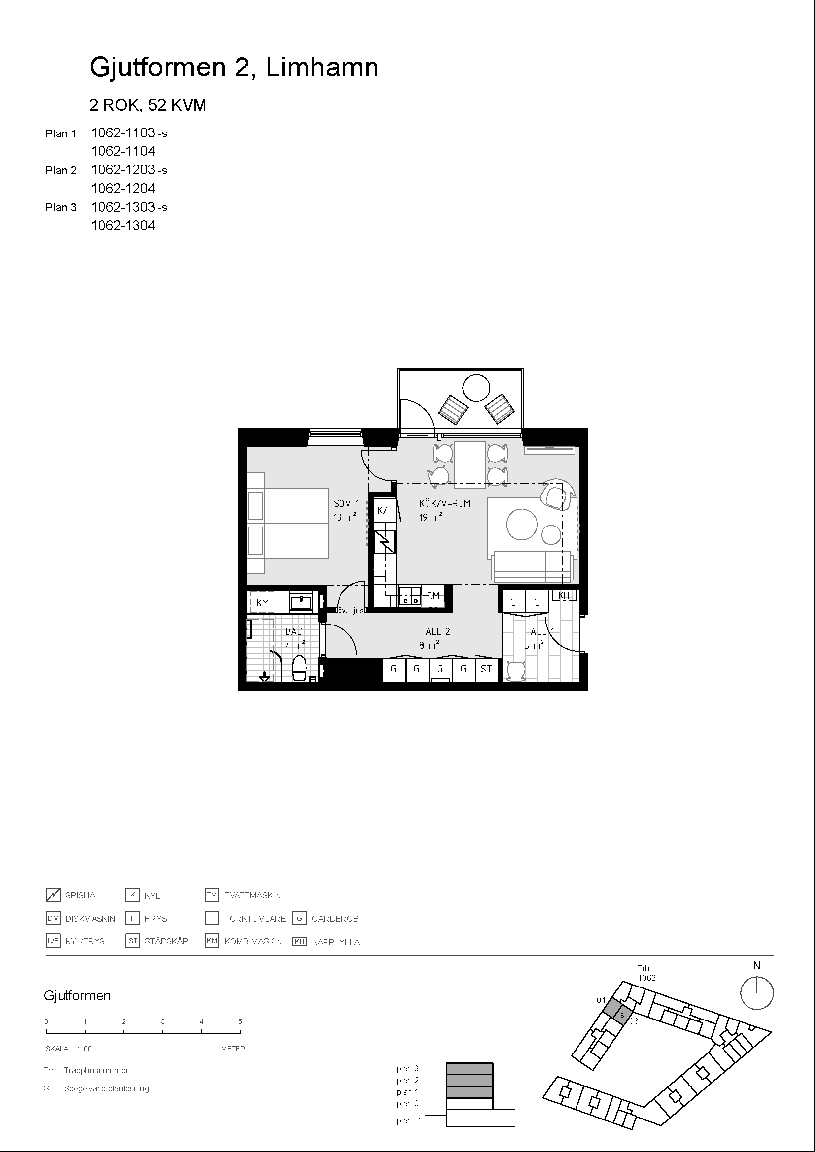
Lägenhet, 2 rum och kök, 52m2, Plan 4 (av 7)

Hyra 11205 kr/mån

Fastighet: Gjutformen 2

  • Fasaden längs med Limhamnsvägen

Tillträdesdatum: 2026-07-01

  • HissFastigheten är utrustad med hiss.
  • IMDIndividuell mätning och debitering.
  • DiskmaskinLägenheten är utrustad med diskmaskin.
  • TvättmaskinLägenheten är utrustad med tvättmaskin.
  • TorktumlareLägenheten är utrustad med torktumlare.
  • FiberFiber uppkoppling finns i fastigheten.
  • KällarförrådKällarförråd ingår i hyran.
  • GarageGarage, tecknas separat i mån av plats.
  • Balkong/terassLägenheten har balkong eller uteplats.
  • BilpoolTillgång till bilpool.
  • TräningsrumTillgång till bokningsbart träningsrum.
  • TvättstugaGemensam tvättstuga finns i huset.

Förbrukningar (IMD - individuell mätning och debitering) tillkommer hyran i form av el, kall-och varmvatten samt extra värme som debiteras på hyresavin med två månaders förskjutning. Utöver hyran debiteras under hela hyrestiden en avgift med för närvarande 369 kr/månad. I denna avgift levereras bredband 300/300 samt tv kanalerna 1-12, Kunskapskanalen, Barnkanalen samt SVT24

Vi erbjuder ett rökfritt boende för bättre hälsa och trivsel.

Beskrivning

1 månads deposition.

Jag vill fylla i intresseanmälan

Intresseanmälan / Lägenhet

För att erhålla bostad hos oss krävs det att man inte har några betalningsanmärkningar och att man har stadigvarande inkomst samt goda referenser från tidigare hyresvärd. En deposition motsvarande en månadshyra erläggs innan inflyttning. Den sökande/medsökande ska ha fyllt 18 år. 

Vi strävar efter en blandad sammansättning av hyresgäster, både äldre och yngre, studerande och arbetande, barnfamiljer, pensionärer osv. Med detta i åtanke förbehåller vi oss därför rätten att fritt välja bland de som söker till en ledig lägenhet.

De uppgifter som lämnas i denna intresseanmälan kommer att registreras och behandlas i datasystem för intresseanmälningar och hyresadministration. I och med att denna intresseanmälan skickas in godkänner du att Vita Örn AB kontrollerar dessa uppgifter hos kreditupplysningsbolag samt hos tidigare hyresvärd.
Enligt Dataskyddsförordningen (GDPR, The General Data Protection Regulation) har du rätt att få information och rättelse av de personuppgifter som finns registrerade. Ansökan om registerutdrag/rättelsebegäran skall ställas till Vita Örn AB, Box 20075, 200 74 Malmö.
Läs mer om Dataskyddsförordningen hos Datainspektionen: www.datainspektionen.se